Mieszkanie bezczynszowe z windą 45,3 m2
Mamy przyjemność ogłosić, że rozpoczynamy sprzedaż bezczynszowych apartamentów w drugim…
370,010zł
śląskie, Istebna, Jaworzynka
sprzedaż
1,100,000zł












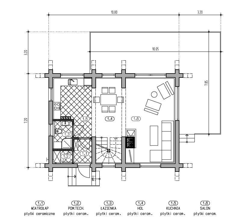
Szukasz miejsca, gdzie czas zwalnia, a natura otula spokojem? Ten urokliwy drewniany dom z bali (116 m²) w Jaworzynce to idealna przestrzeń dla rodziny, marzącej o życiu blisko natury. Położony w cichej, malowniczej okolicy, otoczony stylową drewnianą zabudową, stanowi wymarzone miejsce do odpoczynku i codziennego życia.
To dom, w którym poczujesz ciepło drewna, wypijesz poranną kawę na przestronnym tarasie, wsłuchując się w szum lasu. Zimą zrelaksujesz się przy kominku po dniu spędzonym na stoku, a latem wyruszysz na górskie wędrówki tuż za progiem.
Najważniejsze informacje:
– Stan surowy zamknięty: możliwość wykończenia według własnego pomysłu
– Powierzchnia działki: 1000 m²
– Rok budowy: 2024
– Materiał: drewno, świerk istebniański, 25x30cm
– Poddasze użytkowe
Media i infrastruktura:
– Woda – studnia głębinowa (43 m) z pompą, podłączona do budynku
– Prąd – doprowadzony do budynku
– Szambo – 5 m³, podłączone
– Studnia chłonna
– Dojazd drogą gminną (odśnieżaną zimą)
Dodatkowe atuty:
– Taras drewniany i balkony ze szklaną balustradą
– Wykonane miejsca parkingowe – możliwość zabudowy wiatą lub garażem
– Okolica sprzyjająca spacerom, bliskość lasów i gór
Dom położony jest niedaleko granicy z Czechami i Słowacją – możesz traktować go jako swoją prywatną przystań lub wykorzystać jako dochodową inwestycję, wynajmując turystom spragnionym górskich przygód.
Zadzwoń i umów się na prezentację!
Cena: 1 100 000 zł
Mamy przyjemność ogłosić, że rozpoczynamy sprzedaż bezczynszowych apartamentów w drugim…
370,010zł
Ursus należy do najbezpieczniejszych rejonów stolicy, dzięki czemu dzielnica cieszy…
789,000zł
Posiadanie domu jest podstawą bogactwa... zarówno finansowego, jak i emocjonalnego.
Suze Orman